富山・石川県でリノベ物件・一戸建て・土地など不動産を探すなら中古住宅再生センターへ

リフォーム事例

東京から富山への移住を実らせた、古民家復元リノベーション

一戸建て

所在地
富山県高岡市
施工価格帯
2410万円
築年
60
工事日数
180
リフォーム箇所
古民家リノベーション

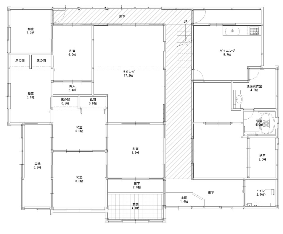
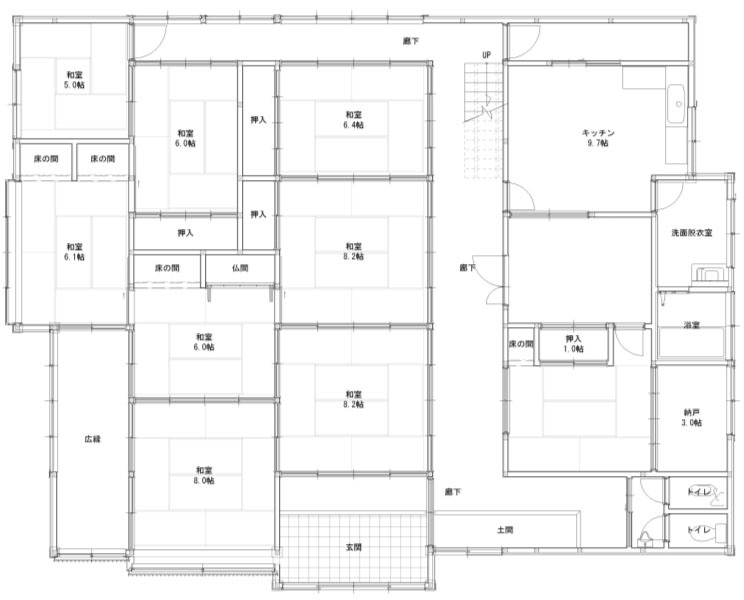
築60年の古民家をリノベーションしたいとご相談を受けました。東京で住んでいた家が小さく「いつか自然の豊かな地で大きな家で暮らしたい」と考えておられたH様がご購入されたのは、砺波平野に古くから見られる伝統的な日本家屋で、10年間空き家だったとはいえ、風格のあるとても立派な建物でした。和風建築が希望だったご夫妻が立てたリフォームプランは、〝できるだけ元の姿に沿うように〟というものです。
リフォーム前はトタンで補修されていた外壁は、塗り壁を思わせる意匠の窯業サイディングと、杉板と漆喰で、腰壁と白壁の伝統的な外観スタイルを復元しました。室内は、撤去されていた欄間や神棚を新たに取り付け、リビングの壁には丸窓風の開口を施工しました。伝統工芸にもこだわられ、床材には、スプーンでカットされたような「名栗加工」と、木目が浮き立ったような「うづくり加工」のものを採用されました。
リビングは現代のライフスタイルに合わせ、畳からフローリングに替えました。水回りはぐっと近代的な内装となっており、キッチンにはヘリンボーンのフローリングを施工、浴室と洗面脱衣室は都会的なイメージに。
内窓や断熱材で気密性を高め、寒さ対策も行いました。
建具や照明など、元からある設備はできるだけ残し、新品にはない本物のアンティークの味わいが生きた、大正モダンを思わせる素敵な古民家になりました。富山への移住生活をよりよいものにする住まいのお手伝いができ、大変うれしく思います。

BEFORE / AFTER

ピックアップ

PAGE
TOP