富山・石川県でリノベ物件・一戸建て・土地など不動産を探すなら中古住宅再生センターへ

リフォーム事例

マンションで叶えた、 家じゅうに自然光が届く住空間

マンション

所在地
富山県富山市
施工価格帯
1489万円
築年
42
工事日数
100
リフォーム箇所
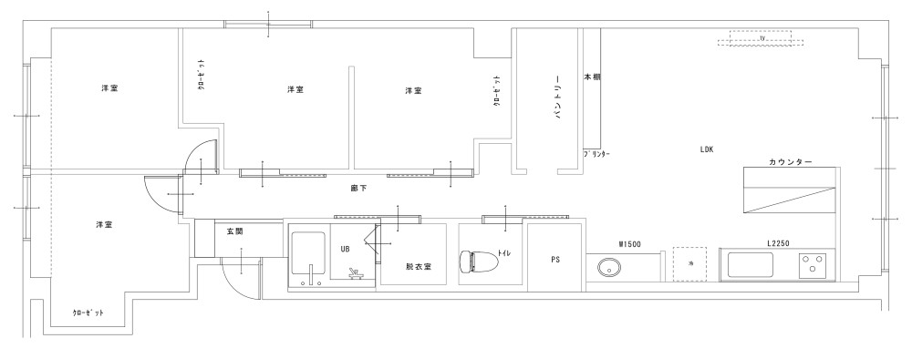
マンション内部 全面リノべーション

分譲マンションを購入されての住み替えリフォーム。築42年と年数が経っていたことと、間取りも全て変えたいとのご要望から、壁や床、配線や配管も全て解体し、スケルトン状態からのリノベーションすることになりました。
「明るい家にしたい」というご家族のご希望で、ホワイトの壁クロスと柔らかな色味のメープルのフローリングを採用。白い壁は光の反射率が高いため、LDKの大きな窓から入る光が家全体に届きます。窓際には室内干し用のスペースをつくり、光を遮ることなく目隠しできる低い壁で仕切っています。照明を白で統一し天井との一体感を出し、キッチンと横並びになった洗面化粧台の間仕切りをなくすなどの工夫で、広く開放的なLDKになりました。
対面キッチン風にしたキッチンカウンターは、キッチンをほどよく隠し、作業スペースと収納力を確保。カウンターテーブルは、家事の合間のパソコン作業などに便利です。
床面をフルフラットにしたいというご主人のご要望で、居室の扉はできる限り吊り戸を採用。床にレールがなく軽い力で動かせる吊り戸は、掃除もしやすいというメリットもあります。
住み替え前の住居では個室がなかったというご家族が、ひとりの時間もゆっくり楽しめるよう、ご家族それぞれの個室を新しくつくりました。一部屋だけ窓のない部屋には、リビングからの明かりが入るように、天井近くにFIX窓をつくり、隣室との壁を天井まで全て塞がずに低い壁にするなど施主様のアイデアも隅々に取り入れています。
ものが多いというご家族のため、収納にもこだわりました。大きなものや隠したいものは、全てリビング横のパントリーに。花粉症対策としてコート類を居室に持ち込まないハンガー収納の位置決めなど細かな点は現場で打ち合わせ決めていきました。
施主様にもご満足いただき、たくさんのこだわりを具現化した快適なお住まいになったと思います。施主様が頻繁に現場に来て下さり、職人と一緒に打ち合わせしながら工事を進められたのが、今回のリフォーム成功の大きなポイントとなりました。

BEFORE / AFTER

ピックアップ

PAGE
TOP