富山・石川県でリノベ物件・一戸建て・土地など不動産を探すなら中古住宅再生センターへ

リフォーム事例

趣味を楽しむ 豊かなセカンドライフを叶えるマンションリフォーム

マンション

所在地
富山県富山市
施工価格帯
313万円
築年
30
工事日数
14
リフォーム箇所
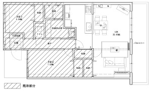
LDK

築22年の中古マンションを購入し、「終の住処」とすることを決められたM様。購入後すぐにキッチン・浴室のクリーニングやトイレ交換を行い、まずは暮らしをスタートされました。LDKの改修は、1年ほど実際に住みながら将来の暮らしをイメージし、その答えを形にすることに。
当初からのご希望だった、リビングと隣室を仕切る壁の撤去により、視界が大きく広がりました。さらに圧迫感を与えていたキッチンの吊戸棚をなくすことで、天井まで伸びやかな開放感のあるLDKが誕生。床はフローリングから柔らかなタイルカーペットへ。踏み心地の良さに加え、防音効果や光の反射を抑える効果で、落ち着きのある空間になりました。
キッチンは、機能的でありながらデザイン性も高いクリナップの「ラクエラ」を採用。上品なホワイトウッドの色合いと、淡いグレーのアクセントウォールがさりげないおしゃれを感じさせます。キッチンの幅を2.7mに拡張したことで、使い勝手も向上しました。
大きな2つの窓には内窓を設置しました。エアコンの効きが良くなっただけでなく、防音性の高さにもお喜びいただいています。
M様こだわりのインテリアは、ミヤモト家具の木製カーテンレールです。天然木の美しい木目が、シンプルな内装に上質なアクセントを加えています。また、趣味の絵画を飾れるピクチャーレールや飾り棚も設置し、よりM様らしい空間になりました。
「リフォーム前は素敵さに欠ける部屋だったので、気持ちよくいられる素敵な部屋にしたかった」というM様の想いが形になったLDK。音楽や美術を愛するM様のセカンドライフを充実させる、終の住処にふさわしいリフォームとなりました。

BEFORE / AFTER

ピックアップ

PAGE
TOP