富山・石川県でリノベ物件・一戸建て・土地など不動産を探すなら中古住宅再生センターへ

リフォーム事例

柱を活かして魅せる空間に 自然と調和するLDKリフォーム

一戸建て

所在地
富山県中新川郡上市町
施工価格帯
498万円
築年
40
工事日数
30
リフォーム箇所
LDK

築40年を迎えたF様邸。これまで二世帯住宅として長く家族を見守ってきた住まいですが、お姑様が施設へ入所されたのをきっかけに、ご夫婦二人の暮らしに合わせた住まいへとリノベーションを行いました。
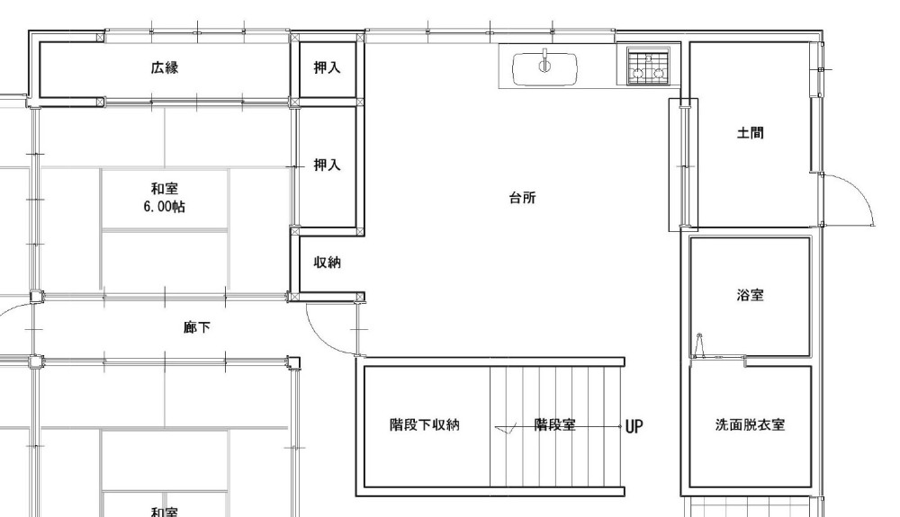
奥様がご希望されたのは、お孫さんの様子を見守りながら家事ができる「対面キッチン」。隣接していた和室を取り込んで、明るく開放的なLDKへと間取りを変更しました。構造上どうしても残す必要があった柱は、木目調のクロスを巻いて空間に馴染むよう工夫。自然をこよなく愛する奥様のために、アクセントクロスには深みの異なるグリーンを組み合わせ、天井には木調クロスを施して、優しさと落ち着きのある空間に仕上げました。
また、お孫さんの安全面に配慮し、窓は小さめに設計。とはいえ、F様が大切にされていた窓からの自然の眺めを活かすため、キッチンに立ちながらでも景色を楽しめるよう、窓の高さや配置には細やかに調整を加えています。
快適性を高めるため、壁・床にはたっぷりと断熱材を充填し、室内はすべて段差のないバリアフリー仕様に。キッチン部分の床にはフロアタイルを採用し、LDK全体に一体感を持たせつつも、素材を切り替えることで視覚的に空間をゆるやかに区切っています。
「孫の姿を見ながら安心して家事ができるだけでなく、窓から見える季節の景色に癒されています。室内も暖かくて過ごしやすく、暮らしがガラッと変わりました。ようやく“人を呼びたくなる家”になって、本当に嬉しいです!」と奥様。
リフォーム後は、娘さんご夫婦や息子さんご夫婦が頻繁に遊びに来られるようになり、LDKはお孫さんたちの笑い声でにぎわいます。ご夫婦お二人の暮らしを大切にしながらも、ご家族みんなが自然と集まり、にぎやかに過ごせるF様邸。これからも多くの幸せな時間が、このあたたかな空間に刻まれていくことでしょう。

BEFORE / AFTER

ピックアップ

PAGE
TOP