富山・石川県でリノベ物件・一戸建て・土地など不動産を探すなら中古住宅再生センターへ

リフォーム事例

区切られた間取りから視線が通る明るいLDKへリノベーション!

一戸建て

所在地
富山県高岡市
施工価格帯
1140万円
築年
30
工事日数
60
リフォーム箇所
戸建て住宅 内部全面リノベーション

K様、この度は大きな工事をお任せいただきありがとうございました。思わぬ災害により、購入されたお家。ご予算を抑えつつ、古いつくりから今どきの空間にさせていただきました。弊社ショールームの展示品を使って、設備費を抑えたり、内装はビニールクロスで雰囲気を出したり。ですが、断熱性のは家中の窓に内窓をつけて省エネなお家に。また、衣類乾燥機や対面式キッチン、ウォークインクローゼットなど子育て世代のご夫婦にも嬉しいお家になったかと思います。初めてショールームにご来店いただいたときから、楽しくお話させていただき、ご契約後もお打合せにご協力もありがとうございました。そのおかげで何とかご希望の期間でお住まいできるよう作り上げることができました。新しいお家での生活がより豊かな生活になることをお祈りしています。今後とも宜しくお願いいたします!

BEFORE / AFTER

  • キッチン

    コメントが入ります

    コメントが入ります

  • LDK

  • LDK

  • バスルーム

  • 洗面

  • トイレ

  • トイレ

  • 和室

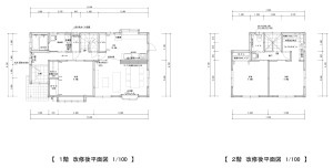
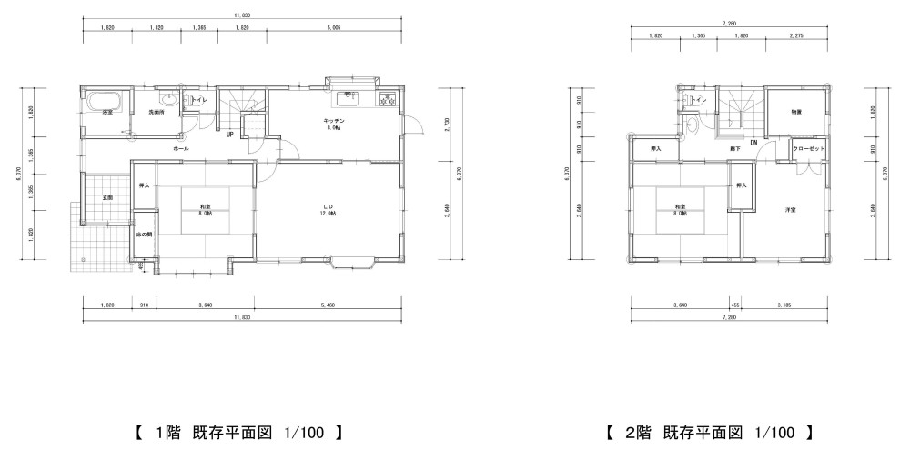
  • 図面

ピックアップ

PAGE
TOP