富山・石川県でリノベ物件・一戸建て・土地など不動産を探すなら中古住宅再生センターへ

リフォーム事例

会話が弾む!アイランドキッチンが主役のLDK

一戸建て

所在地
富山県中新川郡立山町
施工価格帯
638万円
築年
45
工事日数
30
リフォーム箇所
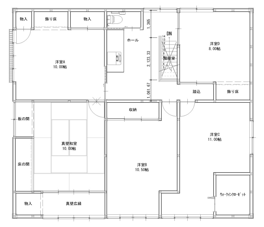
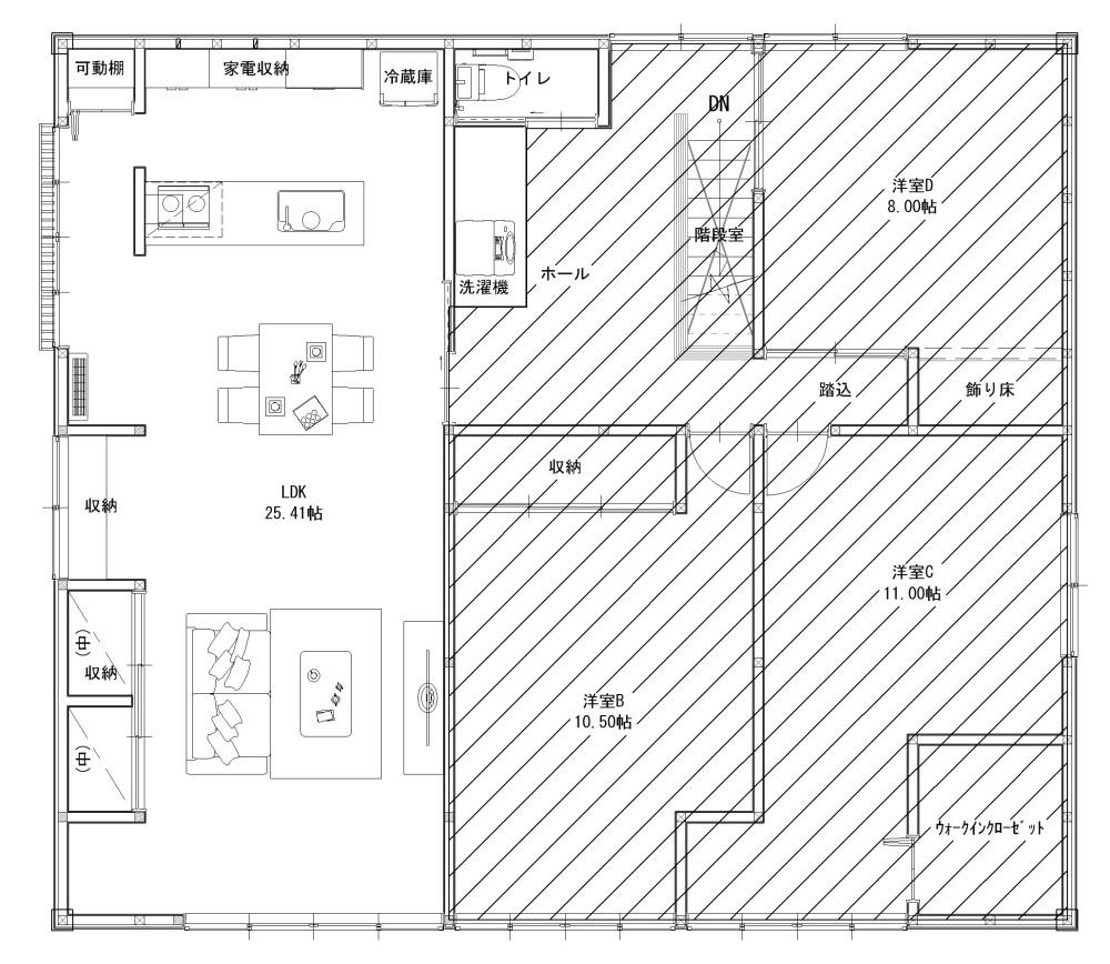
2F LDK・トイレ(二世帯住宅)

結婚されて1年ほどアパート住まいをしていたT様ご夫妻、奥様のご実家をリフォームして二世帯で住まわれることになりました。
ご家族で相談の結果、2階にあったお父様とお母様の私室を1階に移動し、空いた2階の2部屋を若夫婦のLDKにリフォームすることに。
お二人の希望は「明るい住まい」。窓のサイズは変えずに、壁や天井を白いクロスで、床はホワイトアッシュのフローリングで仕上げました。内装に色を多用することで、窓からの光が反射し、LDKを広く明るく見せることができます。
もともとの部屋は一般的なサイズよりも天井が低かったので、少しでも高くするため、天井を解体して高さを上げるように計画しました。しかし、一部に撤去できない梁があったため、部分的に下がり天井にすることに。キッチンの下がり天井をあえて色を変えたことで、キッチンとリビングの空間の区切りをおしゃれに演出します。天井の淡いグレーは、キッチン扉や家具などにも差し色として使い、白との柔らかなコントラストで優しい印象のお部屋になります。
部屋を広く見せる効果は、照明計画にも。ダウンライトを等間隔でまっすぐに並べることで、空間に広がりを感じさせることができます。
お二人でキッチンに立つことも多いというご夫妻は、新しく広くなったキッチンに大満足。「2人で並んでも作業しやすいし、フルフラットなのですっきりして見えるところも気に入っています」休みの日は家でコーヒータイムを楽しんだりしてゆったりと過ごすことも増えたそうです。リフォーム後に引っ越してきてからは、キッチンの床や2階のホールの床にフロアタイルをDIYで貼ったりと、住まいへの関心が以前より高まったと言います。
同居を決められたのは、ご実家にいる4匹の猫ちゃんと暮らしたいとの奥様の想いが強かったのも理由のひとつでした。リフォームにより断熱効果の上がった部屋には、猫ちゃんたちが集うことも多くなったとか。「そのうちこの部屋にキャットウォークも付けたいです」と、家での楽しみはますます広がっていくようです。

BEFORE / AFTER

ピックアップ

PAGE
TOP