富山・石川県でリノベ物件・一戸建て・土地など不動産を探すなら中古住宅再生センターへ

リフォーム事例

家族の暮らしにフィットする、整う住まいのかたち

一戸建て

所在地
富山県高岡市
施工価格帯
1344万円
築年
26
工事日数
70
リフォーム箇所
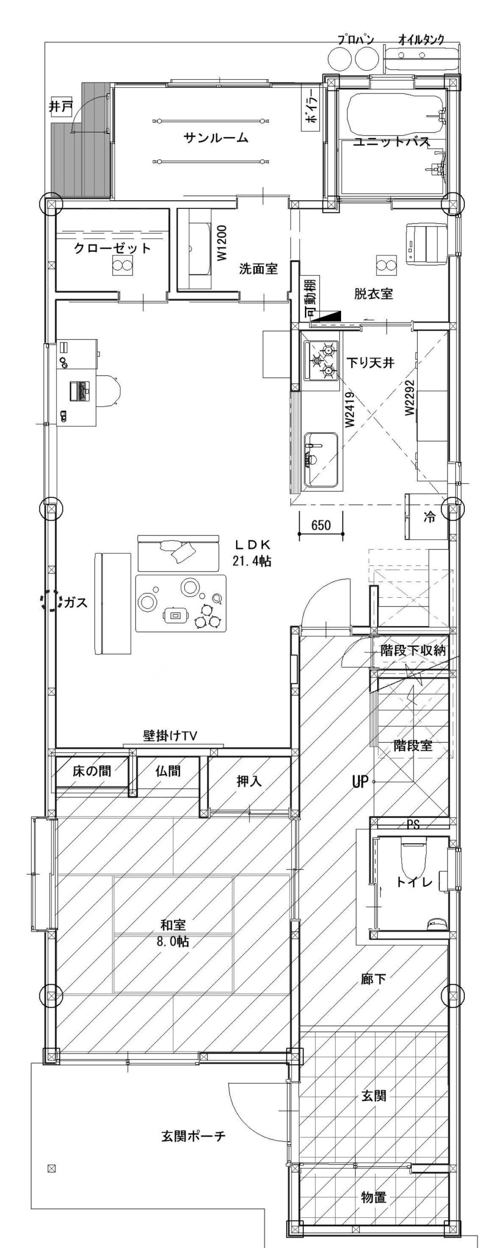
LDK・お風呂洗面・サンルーム・トイレ

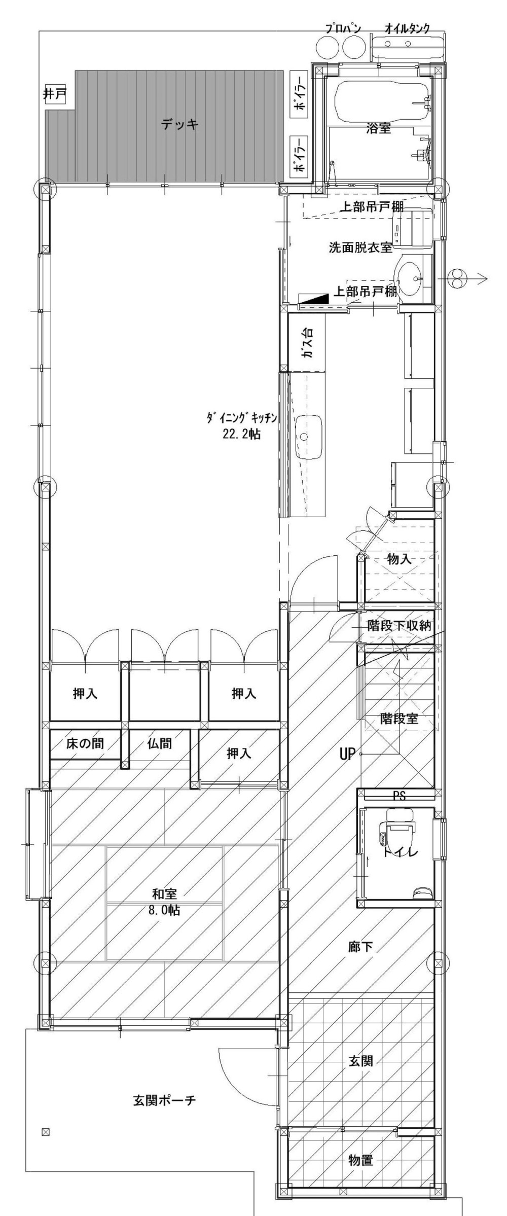
築年数とともに劣化が目立ってきた水廻りのリノベーションに踏み切られたU様ご家族。とにかく家事の負担を軽減したいという想いから「掃除のしやすい住空間」をコンセプトにリノベーション計画がスタートしました。
2世帯でお住まいのU様邸では、誰もが気持ちよく使える空間を目指し、トイレの床にはお手入れがしやすく清潔感を保ちやすいフロアタイルを採用。さらに、背面には調湿壁材をあしらい、消臭・調湿効果をプラスしました。
洗面室は年頃の娘さんへの配慮から、脱衣室と分けて独立した空間を新たに設けました。これまで一体だった洗面・脱衣スペースを分離することで、プライバシーが守られ、家族それぞれが気兼ねなく利用できます。洗面化粧台は、2人並んでもゆったり使える幅1200mmタイプを採用し、収納力もたっぷりです。朝の身支度もスムーズに行える、機能的で快適な空間へと生まれ変わりました。
そしてキッチンはタカラスタンダードの「トレーシア」。マグネット対応の壁面により、収納を自由にカスタマイズできるため、道具の出し入れもスムーズです。インスタグラムで出会ったお気に入りのアイデアをかたちにした下がり天井。ゆるやかに空間をゾーニングしつつ、視線を引きつけるアクセントとして、LDKにさりげないリズムを添えています。
また、冷たい空気が入り込み、冬はいつも寒さが気になっていたリビング。北側の掃き出し窓があった場所を収納にすることで、断熱性が高まり、今では家族が心地よく快適に過ごせる空間へと変わりました。
横にあるパントリーはあえて扉をつけず、出し入れのしやすさを重視したオープン仕様にすることで、家事動線もスムーズに。
「リフォームしてからはすごく掃除がしやすくて家事が楽になりました。生活が整って、家族みんなが快適に過ごせています」と奥さま。家事の負担を減らしながら、暮らしの質を高めた細やかな工夫の積み重ねが、日々の快適さへとつながっていますね。

BEFORE / AFTER

ピックアップ

PAGE
TOP